Brunel Halls Floor Plan

Meadow Hall

Meadow Hall

Clifton Hall

Clifton Hall

Mill Hall

Mill Hall

Campus Map Brunel University

Campus Map Brunel University

Faraday Hall

Faraday Hall

Gordon Hall

Gordon Hall

Gordon Hall

The crystal palace was a cast iron and plate glass structure originally built in hyde park london to house the great exhibition of 1851.

Brunel halls floor plan. Corridors of up to 11 rooms share t. University of wisconsin whitewater 800 w. The exhibition took place from 1 may to 15 october 1851 and more than 14 000 exhibitors from around the world gathered in its 990 000 square feet 92 000 m 2 exhibition space to display examples of technology developed in the industrial revolution. Create event plan examples like this template called banquet hall layout that you can easily edit and customize in minutes.

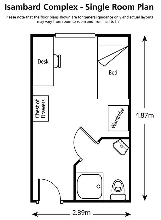
Clifton hall this hall has 236 rooms and is only a two minute walk from the sports facilities and gym. Main street whitewater wi 53190 1790 directory assistance. Sample room floor plan studio room plan situated across various halls around campus there are 1 bedroom flats with a spacious living room one double bedroom bathroom and kitchen. Brunel ac uk uses cookies to make our site better for you.

Lower ground floor flat 23 upper ground floor flat 18 flat 26 19 flat 21 10 29 first floor 1 7 9 10 flat 24 second floor 1 3 5 7 9 10 flat 27 flat 32 3 flat 35 1 5 10 third floor 7 9 10 3 5 10 fourth floor 7 9 10 flat 30 flat 33 10 10 37 fifth floor staircase kitchen lift adapted room 10 adapted room entrance.

Bishop Hall

Bishop Hall

Shoreditch Hall

Shoreditch Hall

Studio And One Bedroom Flats Brunel University London

Studio And One Bedroom Flats Brunel University London

Destination Brunel 2011 By Brunel University London Issuu

Destination Brunel 2011 By Brunel University London Issuu

Brunel University Campus Map Agcas

Brunel University Campus Map Agcas

Galbraith Hall

Galbraith Hall

Syd Urry Hall

Syd Urry Hall

Fleming Hall

Fleming Hall

Faq Visitors Hillingdon Expo

Faq Visitors Hillingdon Expo

11 Brunel Court Toronto

11 Brunel Court Toronto

Brunel

Brunel

Accommodation Brunel University London

Accommodation Brunel University London

Brunel 3 Bed Hollins Homes

Brunel 3 Bed Hollins Homes

Brunel Court Student Halls Pads For Students

Brunel Court Student Halls Pads For Students

Source : pinterest.com